Le Bois

Edificio 2

EDIFICIO 2

El Edificio B está compuesto por cuatro plantas y un subsuelo.

Las plantas están conformadas por 36 Lofts y 22 departamentos de 1 dormitorio.

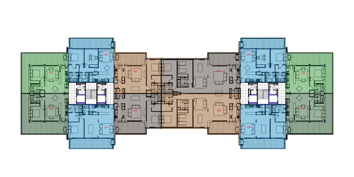
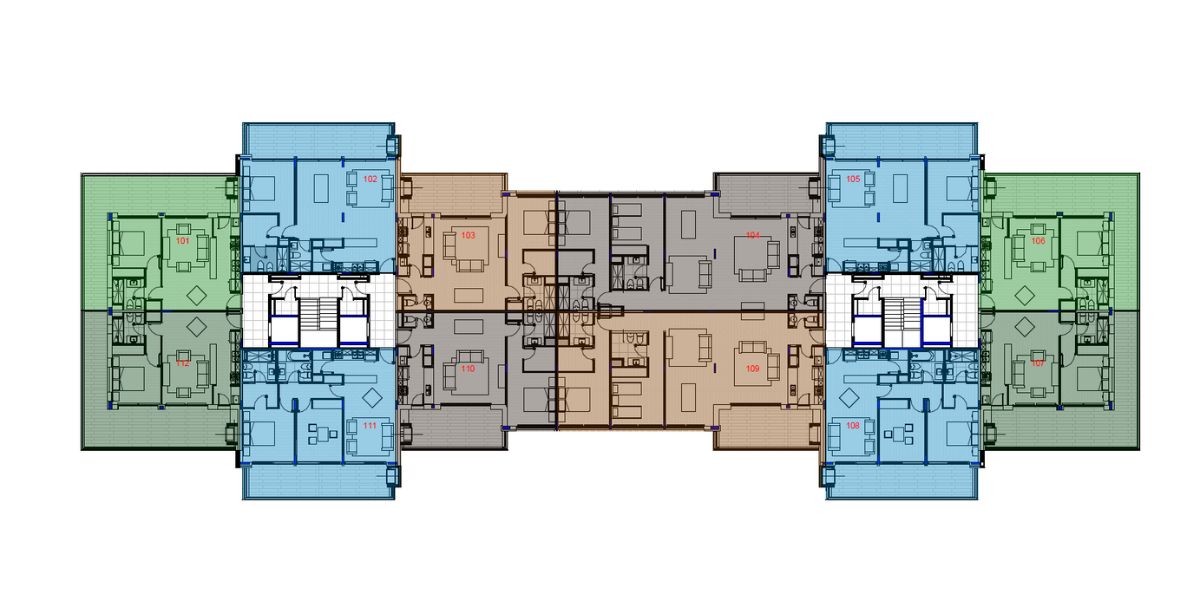
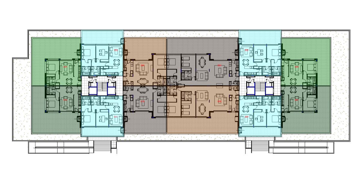
El Edificio 2 está compuesto por cuatro plantas y un subsuelo.

Las plantas están conformadas por 14 departamentos de un dormitorio 30 departamentos de 2 dormitorios.

El subsuelo cuenta con: 64 cocheras cubiertas, 22 bauleras, espacio para motos y espacio para bicicletas.

Hacé click en cada planta para conocer en detalle sus unidades.

SUBSUELO

PLANTA BAJA

PISO 1

PISO 2

PISO 3