Le Bois

Edificio A

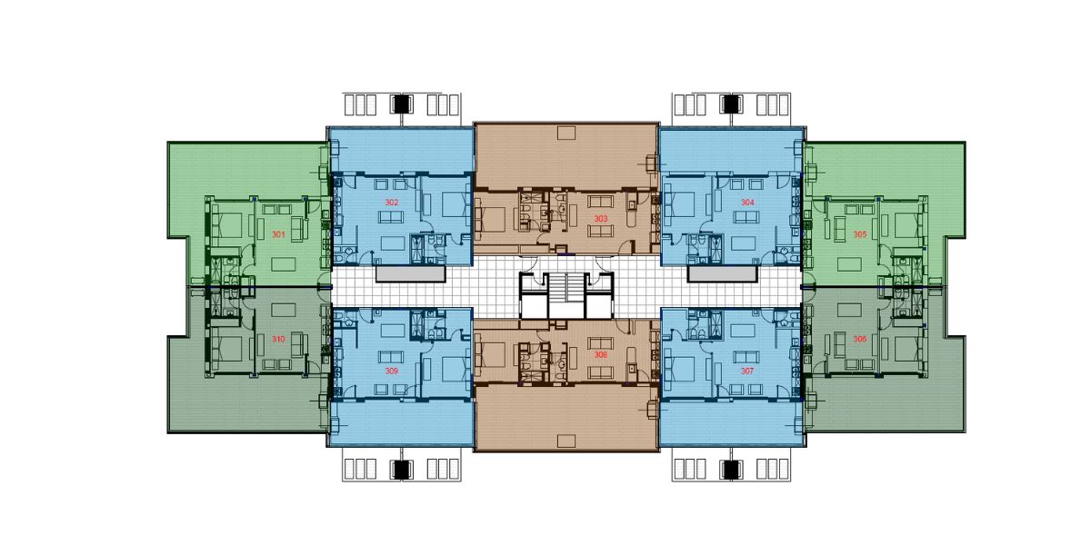
EDIFICIO 1

El Edificio 1 está compuesto por cuatro plantas y un subsuelo.

Las plantas están conformadas por 36 Lofts y 22 departamentos de 1 dormitorio.

El subsuelo cuenta con: 66 cocheras cubiertas, 14 bauleras, espacio para motos y espacio para bicicletas.

Hacé click en cada planta para conocer en detalle sus unidades.

SUBSUELO

PLANTA BAJA

PISO 1

PISO 2

PISO 3